4 - Plus de 1200
3 - 980px - > 1199px
2 - 768px - > 979px
1 - 480px - > 767px
0 - 480px

ETUDES ET REALISATION EN BATIMENTS ET GENIE CIVIL - Bonnes Affaires

Par Fanja - 261 340929880 - Lundi 23 mars 2026 à 07:43:19 - MADAGASCAR / ANTANANARIVO
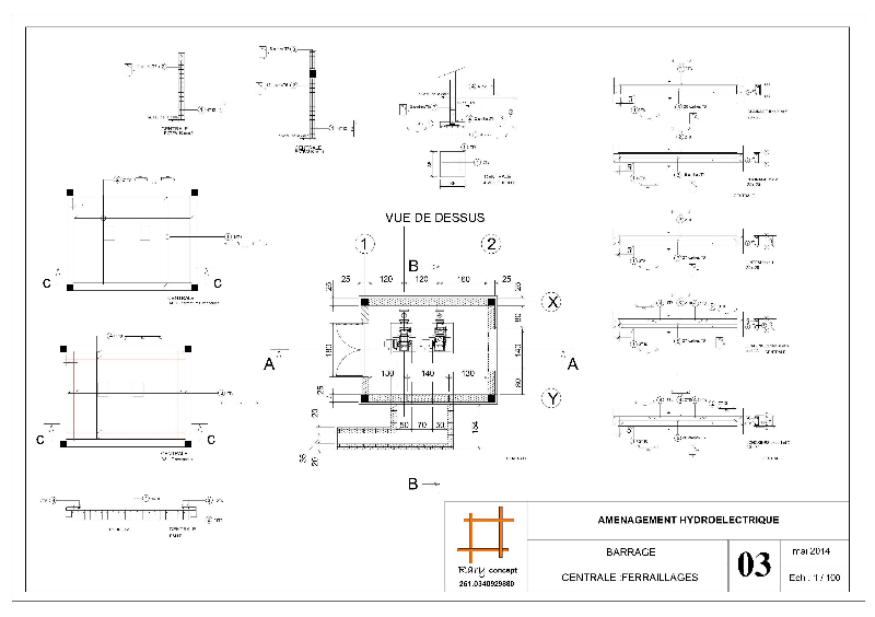
  • ETUDES ET REALISATION EN BATIMENTS ET GENIE CIVIL image 0
RARY concept
Bureau d'Etudes en bâtiment et génie civil
Dans tous vos projets de bâtiment : construction , rénovation et réaménagement
Ingénieur en BTP, 20 ans dans les Etudes et réalisation en bâtiments et génie civil
. Conceptions et études financières de vos projets de bâtiments et TP
.Etudes et élaboration de plans et dossiers d'exécution :
-Calculs de structures
-Plans d'exécution ( ferraillages etc ….)
-Devis estimatif et quantitatif
.Préparation de dossiers d'appel d'offre
.Pour les entrepreneurs : préparation de dossiers d'offre (études et sous détails de prix etc …)
.Etudes et conseils pour des travaux de reprise en structures d'un bâtiment existant
e-mail : hery.rakotonjanahary@yahoo.fr/heryfanjarakoto@gmail.com
Tél: 261340929880

Partager cette annonce

Commenter cette annonce

mode debug : https://www.gasykamanja.com/